Before and Afters are the bread and butter when it comes to promoting a good kitchen design. Designers love seeing the change that can happen to a room in need of a good makeover, and this project is no different. While it wasn’t a grandiose kitchen with a huge space to work in and an unlimited budget, the remodel made a huge impact for this homeowner, and she is in love with her new space!
                    A Dura Supreme kitchen featuring the Hudson Red Oak door with the Cashew stain.
Gwen was looking to remodel the small and dated kitchen of her Bloomington, MN home. She turned to a family friend and contractor, Neil, to help get ideas and costs put together for the project. She had a budget in mind and didn’t want to necessarily deviate from it if she didn’t have to. Neil could get the construction costs, but when it came to cabinetry, that is where he turned to me for help. I have worked with Neil’s family over the years on different kitchen projects, so he brought me in to help with the planning and ideas for the space. I did a site visit to get measurements and photos, and like any project I walk into, I could immediately see the potential for the space of this 1960’s rambler.
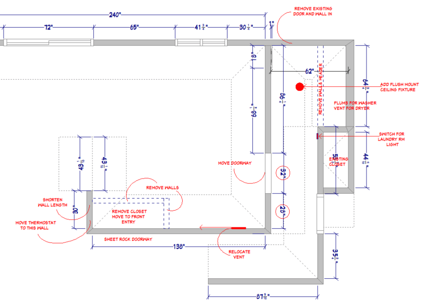
I was excited for this project and for Gwen! Not only because the kitchen had such good bones, but because I knew we could make some changes to really give the space that Wow effect. Gwen was going to update all the appliances, and Neil was willing to put in the work to move them around if necessary. Spoiler alert: it was necessary! There was a hall adjacent to the kitchen with a door that led to the back yard, but Gwen never used it, preferring to go outside via the four-season porch off the dining room. The initial thought was to remove the exterior door as well as the wall and make it part of the kitchen. There were also discussions of bringing the washer and dryer from the basement up to the bedroom off the back hall that served as her home office.
                    
                                                                        The back hall with exterior door that was never used. The door at the right leads to a bedroom being used as an office.
                    
                                                                        The back hall “closet” that was modified to more of a make-shift pantry for extra storage.
                    
                                                                        A look into the kitchen from the back hall. The big refrigerator is the first thing you see!
After working on a couple of designs with the wall removed, and not liking how the space was flowing, I had an ‘ah-ha!’ moment; instead of removing the wall, why not keep it and make the back hall space a laundry room? Not only would it cut the cost of removing the wall, but it would allow the bedroom office to continue to be just that. This also made the new kitchen space flow better from the bedrooms, and with the front closet removed, there was a lot to work with.
                                
            The concept was a go! Demolition began and the design was finalized. Gwen wasn’t keen on having white painted cabinets like so many other homes, so Dura Supreme’s Bria frameless cabinets with Hudson door in Red Oak with the Cashew stain was selected; not as dark as the previous cabinets, but it still added warmth and texture to the room. The original U-shape with base and wall peninsula cabinets was eliminated, which would help brighten the space and open it up.
The new cabinet layout created two L-shaped runs designed opposite each other. With the front closet removed from the kitchen space, and by shifting the doorway into the back hall to the left, it allowed the range and fridge to be moved to the back wall that was under-utilized in the old plan.
                    The doorway was moved to the left more to allow the fridge and range to run along the back wall where the closet used to be.
Each run serves a purpose in zoning the kitchen. The sink area for prep and clean-up now had the sink centered below the window. Gwen loves to bake, so an appliance garage was incorporated in the corner to store her stand mixer, as well as large base drawer cabinets to house her mixing and storage bowls. Over on the range side is prep and cooking zones, with a deep countertop at the peninsula for cooling all the yummy baked goods.
                    
                    
                    
                                                                        The sink is now centered on a new window.
                    
                                                                        A wall cabinet with appliance garage in the corner for storage of the stand mixer.
                    
                                                                        A new microwave set at an appropriate height with induction slide in range for a sleek, professional look.
Storage is plentiful in the new design, with cabinets going to the ceiling and everything easily accessible for Gwen. Several in-cabinet conveniences were added to the design to help with storage and functionality, something she really desired in her new kitchen.
The back hall that was transformed into a small laundry room was a game-changer. It allowed Gwen to have a small stackable washer and dryer on the main living level without having to sacrifice the office in the spare bedroom. Additional base cabinets were used in the space for extra storage, and there is room for open shelving to be installed at a later date if needed. Plus, she still has the full size laundry set in the basement for larger loads like bedding and towels.
                    
                                        
                
                    
                                        
                
                    
                                        
                To complete to overall look of the design, Corian Quartz in Calacatta Villa was used for the countertops in the kitchen. The soft white background with buttery brown veining blends beautifully with the cabinets and new flooring. The simple Craftsman Crown was used to bring the cabinets to the ceiling, and the Bevel Bottom molding was used for the light rail. I even recommended she paint the two-sided brick fireplace right off the kitchen a dramatic black. She was unsure, but after sending her several Pinterest photos, she agreed and she loves how it turned out!
                    
                                                                        Corian Quartz countertops in Calacatta Villa.
                    
                                                                        The newly painted fireplace offers a striking contrast!
                    
                                                                        It can be viewed from the kitchen and blends with the hardware.
Gwen absolutely loves her new kitchen! “I have so much storage I can’t even fill up all the cabinets,” she remarked when I visited to take pictures. She still had a few boxes to put away, but between the new cabinets and laundry room, she is not lacking a place for anything. Her family and friends are thrilled with how everything turned out, not to mention how happy she is that she took the project on and went with it. “Everything is so open and bright, and I’m so happy for the help you and Neil provided! I absolutely love my new kitchen!”
It was a beautiful transformation for this homeowner, and I’m thrilled myself with how it all turned out. The impact it has made will last many years for Gwen!
If you are looking to remodel your kitchen, regardless of how big or small, reach out to your nearest Dura Supreme Cabinetry Showroom today!
Until next time, Be Well!